Цена указана с черновой отделкой, без стоимости участка.
Материалы строительства:
Вариант 1. Наружные стены - газобетонный блок толщиной 400мм., Д 400, внутренние стены толщиной 400мм., Д500. Декоративная штукатурка
Вариант 2. Наружные стены - газобетонный блок толщиной 300мм., Д 500, внутренние стены толщиной 300мм., Д500. Утепление 5 мм. Декоративная штукатурка
- Мягкая кровля, утепление 200мм. Армопояс для каждого этажа.
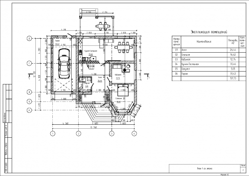
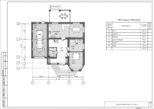
- Фундамент - ленточный.
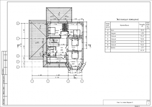
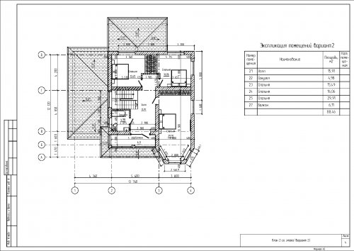
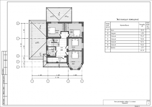
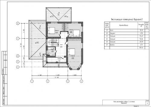
- Количество спален – 5
- Крыша – многоскатная
- Терраса/веранда – есть
- Балкон – есть
- Подвал/цоколь – нет
- Гараж – есть
Для внесения изменений или дополнений в проект, Вы можете обратиться к нам за консультацией.














