Строительство дома ведется по проекту, в строгом соответствии с требованиями ГОСТ. Площадь дома 178 м.кв. плюс гараж 35,4 м.кв, плюс веранда 18 м.кв. Все этапы строительства снимаются на фото и видео. Показываются технические решения, на весь материал имеются сертификаты и платежные документы. Повышенный срок гарантии по договору 10 лет!

Перед началом проектирования было выполнено инженерно - геологическое исследование грунта, результатами которого определен верхний слой грунтовых вод на глубине 2,2м., глубина промерзания 1,08м, тип грунта – суглинок. Принято решение о строительстве ленточного фундамента, глубиной 1,4 м., шириной 0,4м., полы независимые, с обратной засыпкой грунта.

ПЛАНИРОВКА ДОМА. Первый этаж 96,3 м.кв. (плюс гараж 35,4 м.кв., плюс веранда 18 м.кв.), включает в себя просторный светлый холл 26,4 м.кв. с широкими окнами практически в пол (36 см. от пола до окон) с видом на лесной массив и благоустроенный двор, окно на лестнице так же придает восприятие простора и естественного освещения. При входе в холл, сразу ощущается, что это просторный и комфортный дом. В холле спроектированы места для двух шкафов-купе.
Кухня гостинная, площадью 35,4 м.кв. с выходом на веранду. На кухне два больших окна в пол, из которых можно любоваться зелеными насаждениями во дворе, красивым газоном и цветами. Так же блок остекления со стеклянной дверью для выхода на терассу и внутреннюю часть двора.

Комната с эркером 16,6 м.кв. с тремя окнами в пол, с видом на лесной массив и благоустроенный двор. Кабинет или бытовая комната, 12,7 м.кв.
Ванная комната с с/у 5 м кв.

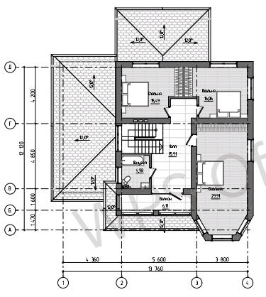
Второй этаж 82м.кв. плюс балкон 6,1 м.кв. включает в себя четыре спальни, площадью 15,5м.кв., 16м.кв., 12,7м.кв. 16,6м.кв., холл, площадью 15,9 м.кв. с видовым оконным блоком в пол и выходом на балкон, с видом на лесной массив, ванную комнату с с/у 5 м кв. Возможно устройство не четырех, а трех спален, площадью 15,5; 16; и 30 м.кв. Оба варианта планировки второго этажа приведены на плане. Высота окон от пола на втором этаже 70 см.

В настоящий момент по желанию заказчика возможно внесение изменений в проект дома.

Фундамент: возведен единой монолитной конструкцией вместе с цоколем. Высота цоколя 80 см. Использовался заводской бетон (Стройнеруд), с запасом прочности, марки М 350, на каждый миксер имеется сертификат и фото приемки бетона. Использовалась заводская арматура диаметром 14 мм, что так же обеспечивает запас прочности, по сравнению с расчетным. 3 жилы вверху, 3 жилы внизу и 2 жилы 12мм в середине фундаментно-цокольной конструкции. П-образная обвязка 12мм. Выдержаны отступы от края стенок бетона вверху и внизу 4-5 см, сбоку 2-3 см. При заливке фундамента использовалась пленка, с целью максимального сохранения жидкой фазы, для набора бетоном необходимой прочности. В течение месяца после заливки бетон регулярно подвергался увлажнению, погода этому очень способствовала, даже сразу после заливки пошел дождь. При заливке бетон тщательно вибрировался, но без излишеств, что бы щебень не осел в низ и верхняя часть конструкции не состояла из бетона без щебня (такие ошибки иногда допускают). Основание под фундамент просыпалось не большим слоем щебня, для распора глины, а так же не большим слоем песка, для заполнения пор между щебнем, все тщательно трамбовалось.

Стены дома толщиной 400мм., будут выполнены из газобетонного блока "Бонолит", плотностью 400 кг/м.куб., что обеспечивает запас энергоэффективности по сравнению с расчетными требованиями для МО. При возведении стен из газоблока будут выполняться все требования, предъявляемые к данному материалу, тонкошовная кладка на клей, с соблюдений необходимых требований к армированию, исключению мостиков холода и промерзания армопояса.

Участок: длинна 35м. ширина 20м., (7 соток) располагается в середине улицы, ближайшей к роще и лесу, в д. Коледино, г. Подольск, в 10 минутах езды из города. Жилой массив Новое Коледино состоит из нескольких улиц новой застройки, с закольцованными асфальтовыми дорогами, поэтому проезд очень удобный. С балкона дома, а так же из комнат с эркером, вид на рощу и лес. Улица наименее проездная и спокойная. С 2023 года осуществляется газификация домовладений.

Кровля будет выполняться с соблюдением всех требований распределения нагрузки на стены из газобетона, с расчетом стропильной системы, и необходимой технологией утепления. Мягкая кровля исключает шум от дождя и града, достойного качества, в сочетающейся цветовой гамме с фасадом дома, окнами, коричневой подшивой кровли и коричневой водосточной системой.

Отопление планируется выполнить комбинированным, с узлом смешивания для теплого пола на первом этаже, плюс радиаторы хорошего качества, высотой 20 см. На втором этаже классические радиаторы. Двухконтурный котел запроектирован ближе к центру дома, для более качественной циркуляции теплоносителя и распределения тепловой нагрузки, а так же подачи горячей воды в ванные комнаты. По желанию заказчика возможно устройство бойлерной с отделением помещения в гараже.